SST-52 FACADE
SST-52 FACADE
Capability: FACADE / CURTAIN WALL
Our SST-52 Facade System is the ideal curtain wall solution for any architectural application. A wide range of mullions and transom options ensure compatibility with large and heavy glazing modules. With mullion profiles ranging from 5/8” to 10”, and transoms ranging from 7/8” to 10”, paired with its ability to utilize a variety of union options, the SST-52 system is a universal and versatile facade solution for vertical, inclined, corner, and polygonal applications.
PERFORMANCE & TECHNICAL SPECS:
Class/AAMA Rating: AW-PG25
U-Value: 0.14 Btu/H×Ft2×°F
Uniform Load - 37.59 psf
Design Pressure - 25.06 psf
Download Spec Sheet
Dimensions
- Max Width: 98.5”
- Max Height: 98.5”
- Min Width: 19.5”
- Min Height: 25.5”
PROFILE THICKNESS
- Mullion: 2.1 mm & 3.0 mm
- Transom: 2.1 mm
SECTIONS
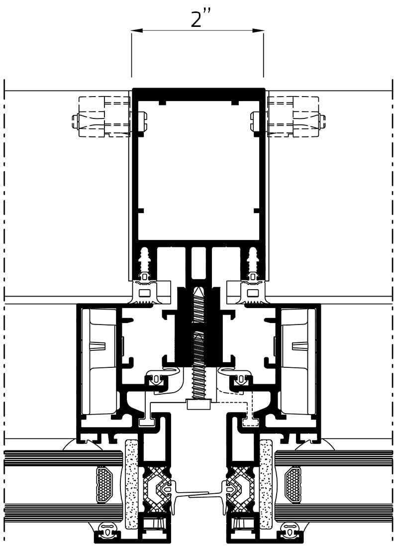
- Mullion: 2”
- Transom: 2”
Technical Characteristics
Extrusion Alloy: 6063 T-5 (Anodized Aluminum)
Thermal Break Length (polyamide strip): 3/4”
Thermal Transmission Coefficient: U ≥ 0.14 Btu/(h⋅ft²⋅°F)
Gaskets: EPDM
Max Glazing: 1-1/8”
Min Glazing: 1/4”
Max Weight (top hung): 396 lb.
Max Weight (fixed light): 770 lb.
The SST-52's glass is mechanically fixed to a perimetral frame, utilizing a specially designed external trim that ensures the stability of the glazing. A major advantage of this approach is the elimination of necessity for chemical fixing with structural silicone or similar fixatives. Heavy duty clips are utilized for fixing the glass-frame to the base profile.
The SST-52's exterior look is that of an open channel with aluminium framing around the glass, with EPDM gaskets around the perimeter of each module which serve as the first line of defense against moisture and weather elements.
FEATURES
• Mullions from 5/8” to 10”
• Transoms: from 7/8” to 10”
• Interior visible section: 2”
• Vertical, Inclined, 90°, corners, polygonal
• Large and heavy glazing modulations
• Weather Tightness Elements:
Drainage pipettes, tear strip gaskets, vulcanized edges
• EPDM gaskets around the perimeter of each glass module
• Excellent thermal and acoustic properties
OPERATION: HIDDEN TOP HUNG
SST-52 FACADE SYSTEM GALLERY

